Montažna kuća Mona
Opis kuće

Površina
118,68 m2

Broj soba
3

Mogućnost izvedbe krova
Ravni i kosi krov
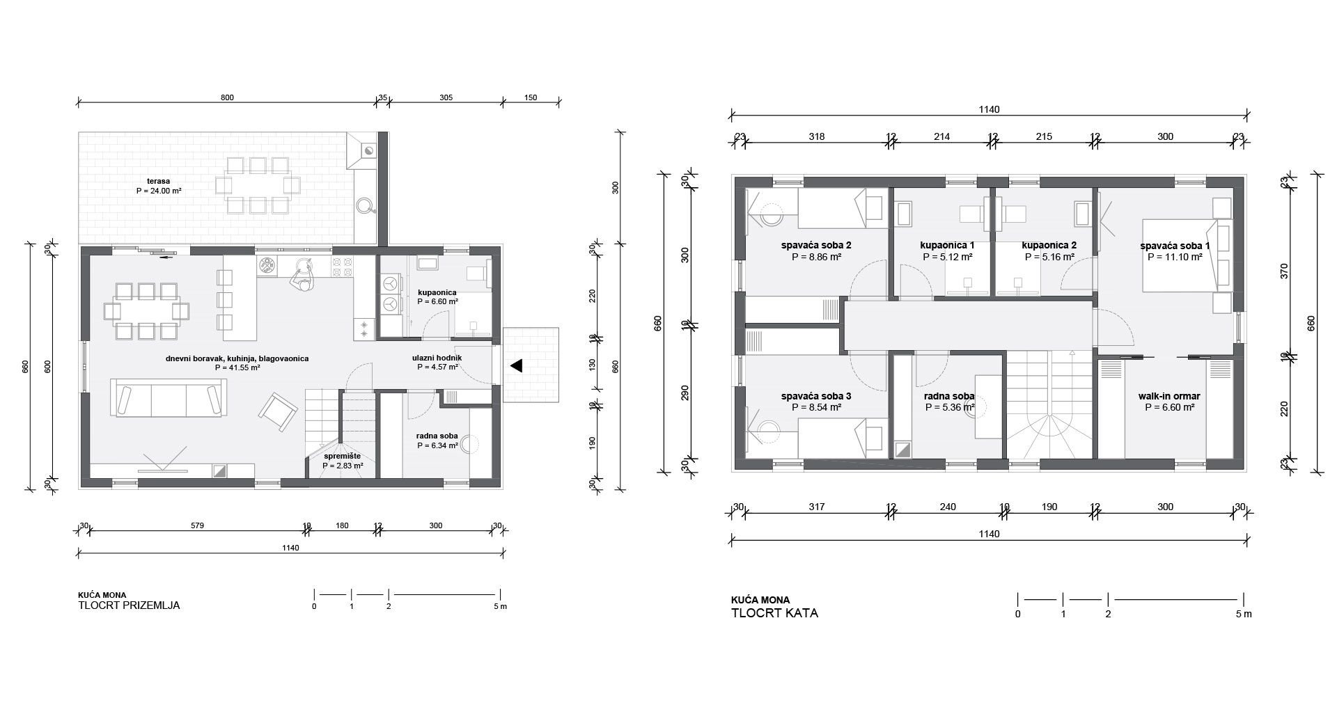
Montažna kuća Mona pripada kategoriji kuća katnica. Ukupne je neto površine 118,68 m2. Prizemlje kuće sastoji se od ulaznog hodnika, radne sobe, spremišta, dnevnog boravka s blagavaonom i kuhinjom te kupaonice. Kat kuće sastoji se od tri spavaće sobe, dvije kupaonice, radne sobe, garderobe i hodnika.
Cijena kuće: 179 000 € + PDV
Cijena temelja: po projektu (okvirno 30 000 € + PDV)
Tlocrt
| Prostorija | Površina m2 | |
|---|---|---|
| Prizemlje | ||
| Hodnik | 4,57 | |
| Radna soba | 6,34 | |
| Kupaonica | 6,60 | |
| Dnevni boravak, kuhinja i blagavaona | 41,55 | |
| Spremište | 2,83 | |
| Kat | ||
| Hodnik | 6,05 | |
| Garderoba | 6,60 | |
| Spavaća soba 1 | 11,10 | |
| Spavaća soba 2 | 8,86 | |
| Spavaća soba 3 | 8,54 | |
| Kupaonica 1 | 5,16 | |
| Kupaonica 2 | 5,12 | |
| Radna soba | 5,36 | |
| Ukupno neto: 118,68m2 | ||
| Ukupno bruto: 150,55m2 | ||
| Vanjski prostori i garaža* | ||
| Natkriveni ulaz | 3,0 | |
| Terasa | 24,0 | |

